Skip To Content

168 Baby Calf Roping Rd

Jarrell, TX 76537
  • $291,815
  • STATUS: Active
  • MLS #: 4455363
Price Reduced
UPDATED: 51 min ago
$291,815
  • 6
    BEDS
  • 0.13
    ACRES
  • 2
    BATHS
  • 1
    1/2 BATHS
  • 2,349
    SQFT
  • $124
    $/SQFT
Neighborhood:
Type:
Single-Family Home
Built:
2026
County:
Area:

School Information

Elementary School:
Middle School:
High School:
School District:
Property listed by Eleonora Santana of Nexthome Tropicana Realty: (254) 616-1850.

Description

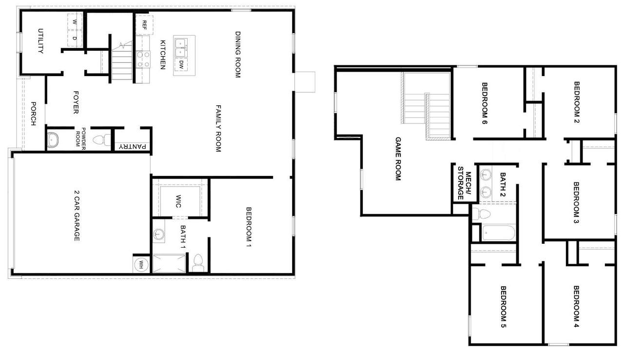
Welcome to our impressive two-story Denise floorplan at Eastern Wells in Jarrell, Texas. With 6-bedroom, 2.5-bathroom home featuring approximately 2,349 square feet of living space. Step into the Denise floor plan and experience thoughtfully designed living where comfort meets style. The open-concept main level creates a bright, welcoming atmosphere by seamlessly connecting the kitchen, dining, and family areas—perfect for entertaining guests or enjoying everyday moments together. At the heart of the home, the modern kitchen features abundant cabinetry, generous counter space, and a spacious central island ideal for cooking, gathering, and conversation. Tucked away is the private primary bedroom is conveniently located on the first floor, offering a peaceful retreat complete with a large walk-in closet and a spa-inspired ensuite bath with a walk-in shower. Upstairs, you’ll find a versatile game room, secondary bedrooms, and a full bathroom—providing ample space for family members, guests, or a home office setup. A dedicated laundry room, convenient half bath, and thoughtfully designed storage throughout the home enhance everyday living. With its open living spaces, smart layout, and modern finishes, the Denise floor plan delivers the perfect balance of comfort, functionality, and contemporary design. Contact us today to learn more about the Denise floor plan!

Monthly Payment Calculator



© 2026 Austin Board of REALTORS® (alternatively, from ACTRIS). All information provided is deemed reliable but is not guaranteed and should be independently verified. The Austin Board of REALTORS®, ACTRIS and their affiliates provide the MLS and all content therein “AS IS” and without any warranty, express or implied.The information provided is for consumers' personal, non-commercial use and may not be used for any purpose other than to identify prospective properties consumers may be interested in purchasing. Data last updated: 2026-04-19T00:00:24.89.

MLS Grid  logoBased on information submitted to the MLS GRID as of 2026-04-19T00:00:24.89 (date and time MLS GRID Data was obtained). All data is obtained from various sources and may not have been verified by broker or MLS GRID. Supplied Open House Information is subject to change without notice. All information should be independently reviewed and verified for accuracy. Properties may or may not be listed by the office/agent presenting the information. Click here for MLS GRID DMCA Notice
www.newhomeprograms.com/homes/174462004
Print Image

168 Baby Calf Roping Rd Jarrell, TX 76537

  • Price: $291,815
  • Status: Active
  • On Site: Days
  • Updated: 51 min ago
  • MLS #: 4455363
6
Beds
2
Baths
1
½ Baths
0.13
Acres
2,349
SQFT
$124
$/SQFT
2026
Built
Neighborhood:
Eastern Wells
County:
Williamson
Area:
Jarrell
Elementary School:
Jarrell
Middle School:
Jarrell
High School:
Jarrell
School District:
Jarrell ISD
Property Description
Welcome to our impressive two-story Denise floorplan at Eastern Wells in Jarrell, Texas. With 6-bedroom, 2.5-bathroom home featuring approximately 2,349 square feet of living space. Step into the Denise floor plan and experience thoughtfully designed living where comfort meets style. The open-concept main level creates a bright, welcoming atmosphere by seamlessly connecting the kitchen, dining, and family areas—perfect for entertaining guests or enjoying everyday moments together. At the heart of the home, the modern kitchen features abundant cabinetry, generous counter space, and a spacious central island ideal for cooking, gathering, and conversation. Tucked away is the private primary bedroom is conveniently located on the first floor, offering a peaceful retreat complete with a large walk-in closet and a spa-inspired ensuite bath with a walk-in shower. Upstairs, you’ll find a versatile game room, secondary bedrooms, and a full bathroom—providing ample space for family members, guests, or a home office setup. A dedicated laundry room, convenient half bath, and thoughtfully designed storage throughout the home enhance everyday living. With its open living spaces, smart layout, and modern finishes, the Denise floor plan delivers the perfect balance of comfort, functionality, and contemporary design. Contact us today to learn more about the Denise floor plan!
Exterior Features

Attached Garage YN Yes Covered Spaces 2 Direction Faces West Exterior Features See Remarks Fencing Privacy Foundation Details See Remarks Garage YN Yes Levels Two Lot Features Sprinklers In FrontSprinkler - In-ground Other Structures None Parking Features AttachedGarage Patio And Porch Features CoveredPorch Roof Shingle View See Remarks Waterfront Features None Waterfront YN No

Interior Features

Appliances See Remarks Cooling Central Air Fireplaces Total 0 Flooring CarpetTile Heating Central Interior Features Ceiling Fan(s)Entrance FoyerPrimary Bedroom on Main Laundry Location Laundry Room Main Level Bedrooms 1 Num Dining 1 Num Living 1 Num Other Level Beds 5 Rooms Primary Bedroom (Main Level See Remarks) Kitchen (Main Level See Remarks) Primary Bathroom (Main Level See Remarks) Window Features ENERGY STAR Qualified Windows

Property Features

Accessibility Features See Remarks Additional Parcels YN No Association Fee 33 Association Fee Frequency Monthly Association Fee Includes See Remarks Association YN Yes Community Features See Remarks Estimated Taxes 0 Fema Flood Plain No Horse YN No Listing Terms CashConventionalFHAVA Loan New Construction YN No Pool Features None Pool Private YN No Property Condition Under Construction Property Sub Type Single Family Residence Sewer Public Sewer Special Listing Conditions Standard Utilities See Remarks Water Source Public



© 2026 Austin Board of REALTORS® (alternatively, from ACTRIS). All information provided is deemed reliable but is not guaranteed and should be independently verified. The Austin Board of REALTORS®, ACTRIS and their affiliates provide the MLS and all content therein “AS IS” and without any warranty, express or implied.The information provided is for consumers' personal, non-commercial use and may not be used for any purpose other than to identify prospective properties consumers may be interested in purchasing. Data last updated: 2026-04-19T00:00:24.89.

MLS Grid  logoBased on information submitted to the MLS GRID as of 2026-04-19T00:00:24.89 (date and time MLS GRID Data was obtained). All data is obtained from various sources and may not have been verified by broker or MLS GRID. Supplied Open House Information is subject to change without notice. All information should be independently reviewed and verified for accuracy. Properties may or may not be listed by the office/agent presenting the information. Click here for MLS GRID DMCA Notice
 
https://bt-photos.global.ssl.fastly.net/austin/1280_boomver_1_4455363-2.jpg https://bt-photos.global.ssl.fastly.net/austin/1280_boomver_1_4455363-2.jpg https://bt-photos.global.ssl.fastly.net/austin/1280_boomver_1_4455363-2.jpg
Logo
NewHomePrograms.com
24624 Interstate 45N, Suite 120
Spring TX, 77386
Property listed by Eleonora Santana of Nexthome Tropicana Realty: (254) 616-1850.